Hamburg-Bramfeld zählt zu den vielseitigsten und lebendigsten Stadtteilen im Nordosten Hamburgs. Charakteristisch sind die ruhigen Wohnstraßen, zahlreiche Grünbereiche wie z.B. die fußläufig erreichbare Grünanlage „Am Stühm Süd“ sowie eines sehr gute Nahversorgung. Wer urbanes Leben mit einer angenehmen, entspannten Wohnatmosphäre verbinden möchte, findet hier ideale Voraussetzungen. DasGrundstück liegt angenehm zurückgezogen und dennoch zentral–perfekt für Familien, Paare und alle, die ein gut angebundenes Wohnumfeld schätzen.
Vom Grundstück aus bestehen gute Anbindungen in alle Richtungen. Mehrere Buslinien sind in fußläufiger Entfernung erreichbar und ermöglichen die schnelle Verbindung zu den umliegenden Stadtteilen sowie zu dennächst gelegenen S- und U-Bahn-Stationen, wie z.B. S-Bahn-Station Wellingsbülttel(S1) oder U-Bahn-Station Farmsen (U1). Die in Realisierung befindliche neue U-Bahn-Linie U5 wird Bramfeld künftig direkt an das Hamburger Schnellbahnnetz anbinden und so die Erreichbarkeit der Innenstadt weiter verbessern.
Über die Bramfelder Chaussee, den Ring 3 sowie die City-Nord ergeben sich gute Anschlussmöglichkeiten für den Autoverkehr.
Für Familien bietet die Umgebung eine Vielzahl an Betreuungs- und Bildungseinrichtungen. In unmittelbarer Nähe befinden sich mehrere Kindertagesstätten unterschiedlicher Träger. Die Stadtteilschule Bramfeld sowie das Johannes-Brahms-Gymnasium sind gut erreichbar und decken die schulische Ausbildung bis zum Abitur ab. Weitere Grundschulen und weiterführende Schulen liegen in den angrenzenden Stadtteilen Steilshoop, Farmsen-Berne und Barmbek.
Damit sind kurze Wege für Kinder aller Altersgruppen gewährleistet.
Bramfeld ist für seine hervorragende Nahversorgung bekannt. Entlang der Bramfelder Chaussee finden sich zahlreiche Supermärkte, Drogerien, Bäcker, Ärztehäuser und Dienstleister. Das modernisierte Bramfelder Dorfzentrum bietet weitere Geschäfte, Gastronomie und Wochenmarktangebote. Größere Shoppingmöglichkeiten befinden sich in der Nahe gelegenen Marktplatz Galerie sowie im nur wenige Minuten entfernten Alstertal-Einkaufszentrum (AEZ).
Die Freizeitmöglichkeiten in Bramfeld und Umgebung sind vielfältig. Der Bramfelder SV bietet ein breites sportliches Angebot für alle Altersgruppen — von Fußball und Handball über Fitnessprogramme bis zu Rehasport. Für Naturliebhaber bieten der Bramfelder See, der Osterbekkanal und mehrere Parkanlagen zahlreiche Möglichkeiten zum Spazierengehen, Joggen oder Radfahren. Verschiedene Fitnessstudios, Sporthallen und Freizeitvereine runden das Angebot ab. Ob Sport, Natur oder Erholung – alles ist schnell erreichbar.
Das Grundstück befindet sich in einer ruhigen Wohnstraße im beliebten Hamburger Stadtteil Bramfeld. Der Doppelhausbauplatz wird real aus dem Gesamtgrundstück abgeteilt. Durch die rückwärtige Lage (ca. 60 m) bietet sich ein besonders geschütztes Wohnambiente– fernab vom Straßenverkehr mit hoher Privatsphäre. Die geplante Bebauung fügt sich harmonisch in die bestehende Nachbarschaft ein. Die Terrassen und Gartenflächen sind optimal nach Süden ausgerichtet, sodass Sie den ganzen Tag von einer hervorragenden Sonneneinstrahlung profitieren. Der großzügige Garten bietet viel Raum für Erholung, Spiel und gemeinsames Familienleben im Grünen.
Hauserstellung in Massivbauweise gemäß Komfort Baubeschreibung
ca. 112 m² bis 145 m²Wohn-/Nutzfläche je nach Ausbauoption
4-5 Zimmer möglich
ca. 416 m² und 418 m² Grundstücksanteile (inkl. anteiliger Zufahrt)
KfW-Effizienzhaus-40-Ausführung (*Förderprogramme 297, 298 und 300 - ohne QNG)
- Luftwasserwärmepumpeinkl. Außengerät (deutsches Markenfabrikat)
- ca. 300 L Warmwasserspeicher für Brauchwasser
- zentraleLüftungsanlage mit ca. 90% Wärmerückgewinnung
- Fußbodenheizungmit Einzelraumregelung im EG und OG
- 12cm Untersohlendämmung
hochwertige Verblendfassade -Steinpreis 1.100 €/1000 Stück brutto – bietet eine große Auswahl an Verblendsteinen
45° Satteldach- Eindeckung mit Tondachpfannen, Dachunterschläge in Kunststoff weiß
1,20 m hoher Drempel (OK Fertigfußboden)
je DHH eine stehende Gaube mit bodentiefen Fenstern zum Garten und eine stehende Gaube über beide Doppelhaushälften1 zum Eingang
gemauerte Terrassentrennwand aus Verblendstein
ca. 20 m² (ca. 34 m² Bodenfläche) komplett ausgebautes Studio mit großzügigem, bodentiefem Giebelfenster sowie 1 Dachflächenfenster – bietet Licht für ein Gäste/Arbeitszimmer (wenn im Auftrag enthalten)
hochwertige Kunststoff-Fenster –außen anthrazit, innen weiß
- 3-fachWärmeschutzverglasung Ug=0,5
- abschließbare Fenstergriffe
- einbruchhemmende Sicherheitsbeschläge (RC2) Pilzkopf
hochwertige Hauseingangstür– außen anthrazit – innen weiß
Vom EG zum OG wird eine Vollholztreppe mit Tritt- und Setzstufen, Seitenwange, inkl. Abstellraum unter der Treppe und vom OG zum Studio eine offene Vollholztreppe (wenn im Auftrag enthalten) eingebaut, beide Treppen erhalten ein Treppengeländer mit Holzrundstäben, Holzart Buche parkettverleimt
2 Bäder mit hochwertiger Ausstattung, z.B.
- 1 Gäste Duschbad im EG mit einer Walk-In-Dusche, einem spülrandlosen WC sowie einem Waschbecken
- 1 Vollbad im OG mit einer 1,80 m großen Duo-Wanne, einerWalk-In-Dusche, einem Waschbecken sowie einem spülrandlosen WC
50 m² Fliesenfläche – Wert derFliesen 40,-€ brutto/m²
10 % Vertragserfüllungsbürgschaft sowie 5 % Gewährleistungsbürgschaft über 5 Jahre - jeweils auf die Vertragssumme
5 Jahre Gewährleistung gemäß BGB plus Festpreisgarantie
individuelle Grundrissgestaltung –auf Wunsch ändern wir die Grundrisse – so wie Sie leben wollen
Die Angebote für die Bauneben- und Hausanschlusskosten wurden bereits für Sie eingeholt oder basieren auf Erfahrungswerten. Bei der Organisation dieser Leistungen stehen wir Ihnen zur Seite. Die Aufträge werden von Ihnen als Bauherr/ Grundstückseigentümer direkt mit den entsprechenden Behörden bzw. Firmen abgerechnet. Die Bauneben- und Hausanschlusskosten setzen sich aus nachfolgenden Positionen zusammen:
- Kosten für Bauherrenhaftpflicht-, Bauwesen- und Feuerversicherung
- Kosten für Gebühren wie Baugenehmigung, Abgeschlossenheitsbescheinigung und sonstige Gebühren
- Kosten für Vermesser, wie Grob- und Feinabsteckung, Höhenplan, Gebäudeabsteckung und -einmessungsowie Katastergebühren
- Kosten für Bodengutachten inkl. Bodenanalyse
- Kosten für Halteverbot und Bauzaun
- Kosten Baumgutachten
- Kosten für Rodung und Räumung des Grundstückes
- Kosten für Baustraße (auf dem Grundstück)
- Kosten für Baustellenüberfahrt auf öffentlichem Grund
- Kosten für Erdarbeiten - Abfuhr überschüssiger Boden (Z0-Boden) sowie Anfuhr von Füllsand
- Kosten für Herstellung Baustromanschluss
- Kosten für Miete Baustromkasten
- Kosten für Herstellung Bauwasseranschluss
- Kosten für Verbrauch von Baustrom und Bauwasser
- Kosten für Herstellung Hausanschlüsse wie Wasser, Schmutz- und Regenentwässerung
- Kosten für Herstellung der neuen Stromversorgung
- Kosten für Herstellung Telefonanschluss
- Kosten für Bautrocknung und Aufheizpatrone
Zu dem genannten Preis müssten Sie die Kosten für Maler- und Bodenbelagsarbeiten, Einbauküche, PV-Anlage, Außenanlage wie Pflasterarbeiten sowie Gartengestaltung, Notar- und Grunderwerbssteuer für ihr Budget mit einkalkulieren.
*Hinweis zur KfW-Förderung:
Das geplante Doppelhaus wird im energetischen Standard KfW-40 ausgeführt. Sollten Sie eine KfW-Förderung in Anspruch nehmen wollen, ist eine zusätzliche, kostenpflichtige Prüfung durch den Statiker erforderlich, einschließlich der Erstellung einer Lebenszyklusanalyse gemäß den Fördervorgaben. Diese Prüfung kann zu ergänzenden Leistungsanforderungen führen und gegebenenfalls Anpassungen am Gebäude nach sich ziehen, die mit zusätzlichen Kosten verbunden sein können.
Gerne sind wir Ihnen bei der Erstellung eines bankprüffähigen Budgetplans behilflich.
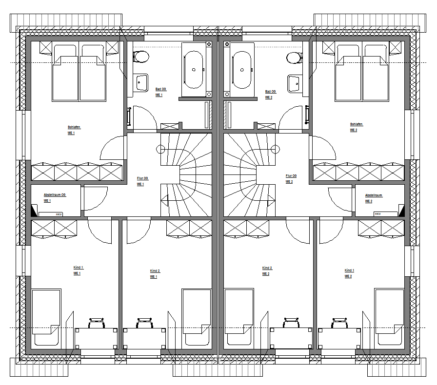
Die beigefügten Grundrisse sind Vorschläge und können individuell nach Ihren Wohnwünschen verändert werden. Sprechen Sie unsgerne an.
Die in diesem Exposé gemachten Angaben beruhenauf Aussagen von Grundstückseigentümern, Maklern, Bauhandwerkern, Architekten etc. Hierfür kann keine Gewähr übernommen werden. Dies gilt ebenfalls für Eingabefehler. Die gemachten Angaben können sich auch während der Vertriebszeit noch ändern. Dieses Exposé ist kein Kaufangebot an einen Interessenten/Käufer und dient nur der Erstinformation. Der Interessent/ Käufer hat keinen Rechtsanspruch auf die hier gemachten Angaben.

Sie haben Fragen? Kontaktieren Sie uns, wir werden Ihnen so schnell wie möglich antworten.